Woonoppervlakte
Circa 80 m²
Perceeloppervlakte
Circa 161 m²
Bouwjaar
Gebouwd in 1968
Aantal kamers
5 kamers (3 slaapkamers)

Van Lenneplaan 11

4707 LL, Roosendaal (Noord-Brabant)

In een rustige wijk in Roosendaal staat Van Lenneplaan 11, een charmante tussenwoning die direct een gevoel van thuiskomen oproept. Je woont hier heerlijk centraal, met winkels, scholen en andere voorzieningen op korte afstand, maar geniet tegelijkertijd van de rust in een gezellige straat. De woning verrast met een lichte en ruime woonkamer, een nette open keuken met een speelse doorkijk, drie ruime slaapkamers en een multifunctionele zolder. De onderhoudsvriendelijke tuin beschikt over een gezellige overkapping en een berging, perfect voor lange zomeravonden of knusse momenten in elk seizoen. Ook de entree is een pluspunt: ruim, licht en voorzien van een handige nis voor jassen, praktisch én stijlvol. Met drie slaapkamers op de eerste verdieping en volop mogelijkheden op zolder is dit een woning die met je meegroeit. Of je nu een gezin hebt, vanuit huis werkt of gewoon van wat extra ruimte houdt, hier kan het allemaal. Ben jij net zo enthousiast als wij? Plan dan snel die bezichtiging in, want deze woning is zó fijn… die wil je gewoon in het echt ervaren!

Entree
Je komt binnen in een lichte, ruime hal met een apart toilet en een mooie afgewerkte trap naar boven. Extra fijn: er is een handige nis voor jassen, waardoor alles netjes en overzichtelijk blijft.

Wonen & Koken
De woonkamer is ruim en licht, een fijne plek om te relaxen op de bank of gezellig te tafelen in de eethoek. Door de open boog heb je vanuit de woonkamer een leuke doorkijk naar de keuken, wat zorgt voor een open en huiselijke sfeer. De keuken zelf is ruim opgezet, voorzien van een nette afwerking en uitgerust met een inductieplaat en afzuiger. Hier kook je met plezier!

Slapen, Dromen & Douche
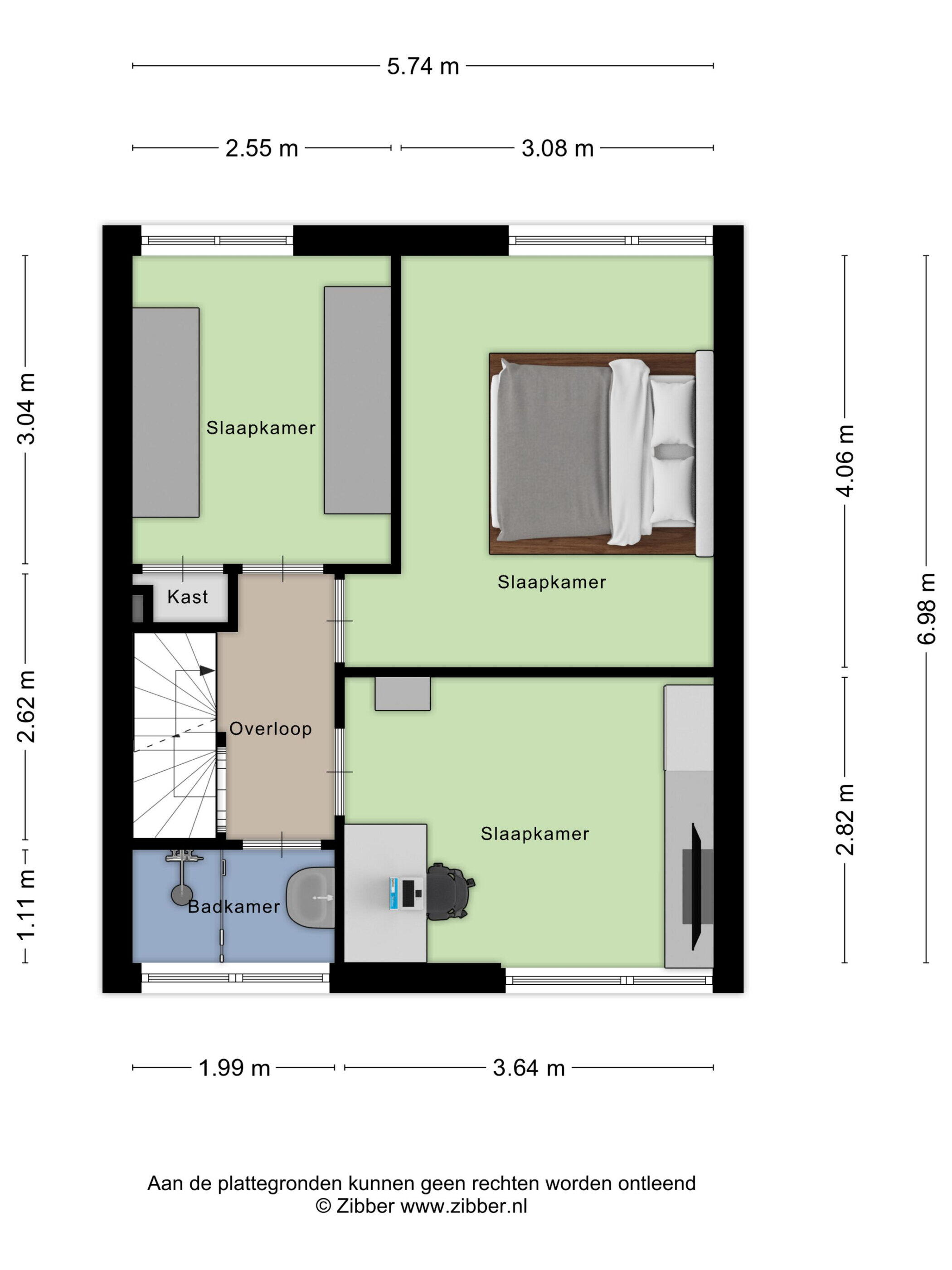
Op de eerste verdieping vind je drie slaapkamers. De grootste kamer is heerlijk ruim en licht. De tweede slaapkamer is ook ruim en wordt nu gebruikt als kantoor, ideaal als je thuiswerkt. De derde kamer is momenteel een walk-in closet, maar kan uiteraard ook als slaapkamer ingericht worden. De badkamer is compact maar compleet, met een ruime douche en een wastafelmeubel.

Tuinieren, Zonnen & Genieten
De tuin is volledig betegeld, dus onderhoudsarm, maar door de groene planten toch sfeervol. Helemaal achterin vind je een fijne overkapping, perfect voor een loungebank en gezellige avonden buiten. In de berging ernaast kun je fietsen of tuinkussens kwijt. Praktisch én knus!

Omgeving en Faciliteiten
De ligging van deze woning is ideaal: op korte afstand van scholen, supermarkten, winkels en openbaar vervoer. Ook sportverenigingen en speeltuintjes zijn dichtbij. De buurt is rustig en vriendelijk, een plek waar kinderen veilig buiten kunnen spelen en je je snel thuis voelt.

Toelichtingsclausule NEN2580:
De Meetinstructie is gebaseerd op de NEN2580. De Meetinstructie is bedoeld om een meer eenduidige manier van meten toe te passen voor het geven van een indicatie van de gebruiksoppervlakte. De Meetinstructie sluit verschillen in meetuitkomsten niet volledig uit, door bijvoorbeeld interpretatieverschillen, afrondingen of beperkingen bij het uitvoeren van de meting.

Plattegronden

Overdracht

Koopsom
€ 290.000 k.k.
Status
Beschikbaar
Aanvaarding
In overleg

Bouw

Object type
Eengezinswoning, tussenwoning
Soort bouw
Bestaande bouw
Bouwjaar
1968
Soort dak
Zadeldak bedekt met pannen

Oppervlakte en inhoud

Woonoppervlakte
80 m²
Perceeloppervlakte
161 m²
Inhoud
338 m³
Overige inpandige ruimte
15 m²
Externe bergruimte
8 m²

Indeling

Aantal kamers
5 kamers (3 slaapkamers)
Aantal badkamers
1 badkamer
Badkamervoorzieningen
Douche, wastafel, wastafelmeubel
Aantal woonlagen
3 woonlagen

Energie

Energielabel
C
Energielabel registratie
07-07-2025
Isolatie
Dakisolatie
Verwarming
Cv-ketel
Warm water
Elektrische boiler eigendom
Cv ketel
Onbekend gas gestookt uit 2023 (eigendom)

Buitenruimte

Ligging
Aan rustige weg, in woonwijk
Tuin
Achtertuin, voortuin

Bergruimte

Schuur / berging
Vrijstaand steen

Garage

Soort garage
Geen garage

Parkeergelegenheid

Soort parkeergelegenheid
Openbaar parkeren

Energieverbruik in Roosendaal

Energielabel deze woning

Energielabel C

Publicatie energielabel: 07-07-2025

Stroomverbruik per jaar

2790 kWh

(Gemiddelde tussenwoning in Roosendaal)

Gasverbruik per jaar

1080 m³

(Gemiddelde tussenwoning in Roosendaal)

* Cijfers zijn afkomstig van het CBS en bedoeld als indicatie en kunnen verschillen voor deze woning

Indicatie hypotheeklasten

Eigen inleg:
Spaargeld / overwaarde

Rente:
Laagste 10-jaars rente

Laagste 10-jaars rente

2,76% - Centraal Beheer Groen... - NHG


2,98% - Centraal Beheer Groen... - 80%

Laagste 20-jaars rente

3,19% - Centraal Beheer Groen... - NHG


3,31% - Centraal Beheer Groen... - 80%

Laagste 30-jaars rente

3,34% - Centraal Beheer Groen... - NHG


3,47% - Centraal Beheer Groen... - 80%


Hypotheek:

Bruto maandlasten: € 0 p/m

Netto maandlasten: € 0 p/m

Hoe berekenen we dit?

Het rentepercentage is gebaseerd op de laagste 10-jaars vaste rente voor één hypotheekdeel. De vermelde rente (2.76% met NHG) is gecontroleerd op 11-07-2025. Deze berekening is gebaseerd op een annuïteitenhypotheek die volledig wordt afgelost, waarbij de maandlasten gedurende de gehele looptijd gelijk blijven. De werkelijke rente en netto maandlasten kunnen variëren, afhankelijk van uw persoonlijke situatie en de hypotheekverstrekker. Raadpleeg een financieel adviseur voor een nauwkeurige berekening en advies. Aan deze berekening kunnen geen rechten worden ontleend; het dient enkel als indicatie.

Zonnegrenzen bekijken

Inwoners in Roosendaal

Cijfers voor postcodegebied 4707

Totaal aantal inwoners
16200 inwoners
Mannen
49%
Vrouwen
51%

Inwoners in Roosendaal

Cijfers voor postcodegebied 4707

tot 15 jaar
15%
15 tot 25 jaar
11%
25 tot 35 jaar
21%
45 tot 65 jaar
26%
65 en ouder
26%

Huishoudens in Roosendaal

Cijfers voor postcodegebied 4707

Eenpersoons zonder kinderen
35%
Meerpersoons zonder kinderen
31%
Huishoudens zonder kinderen
66%

Huishoudens in Roosendaal

Cijfers voor postcodegebied 4707

Huishoudens met één kind
9%
Huishoudens met meerdere kinderen
24%
Huishoudens met kinderen
33%

Woningen in Roosendaal

Cijfers voor postcodegebied 4707

Woningen voor 1945
1%
Woningen tussen 1945 en 1965
1%
Woningen tussen 1965 en 1975
53%
Woningen tussen 1975 en 1985
19%
Woningen tussen 1985 en 1995
13%

Woningen in Roosendaal

Cijfers voor postcodegebied 4707

Woningen tussen 1995 en 2005
4%
Woningen tussen 2005 en 2015
9%
Woningen na 2015
1%
Huurwoningen
50%
Koopwoningen
50%

Overige in Roosendaal

Cijfers voor postcodegebied 4707

Gemiddelde WOZ waarde
€ 201.000,-
Personen onder de 65 met uitkering
9%

Overige in Roosendaal

Cijfers voor postcodegebied 4707

Adressen per km²
2025
Stedelijkheid (schaal 1 op 5)
80%
Postcode kaart 4707 Gemeente kaart roosendaal

Korte feiten over Roosendaal

Roosendaal (uitspraakⓘ) is een stad in de Nederlandse provincie Noord-Brabant, en de grootste plaats binnen de gelijknamige gemeente Roosendaal.

Indien u vragen heeft of u wilt een bezichtiging inplannen, dan kunt u gebruik maken van het formulier hiernaast. Er zal daarna op korte termijn contact met u worden opgenomen.

Vakidioten met een passie voor vastgoed

Bij C&R Makelaars draait alles om jou en je woning. Wij zijn een frisse, energieke generatie makelaars met een passie voor mensen en de woningmarkt.

We geloven in een persoonlijke aanpak zonder poespas: eerlijk, transparant en altijd met een flinke dosis enthousiasme. Het verkopen van je huis is een belangrijke stap, en daarom begeleiden we je op een manier die bij jou past, van begin tot eind.

Met onze diepgaande kennis van de lokale markt geven we je waardevol advies dat perfect aansluit bij jouw situatie én dat van potentiële kopers.

Daarnaast staat ons creatieve team van vastgoedmarketeers klaar om jouw woning in de schijnwerpers te zetten. Met slimme en doordachte strategieën zorgen we ervoor dat je huis opvalt en het maximale resultaat behaalt.

Jouw tevredenheid is ons einddoel. We zetten alles op alles om je verwachtingen te overtreffen. Nieuwsgierig naar ons team? Klik op de button hieronder en maak kennis met ons!

Vakidioten met een passie voor vastgoed
Reviews C&R Makelaars

Van Lenneplaan 11, Roosendaal

€ 290.000 k.k. - Beschikbaar